Villa Grande в Сочи | Sukharev Architects

Проект:
Villa Grande
Место:
г. Сочи, РФ
Время:
2021-2024 гг.
Автор:
Проектная организация:
Город:
Страна:
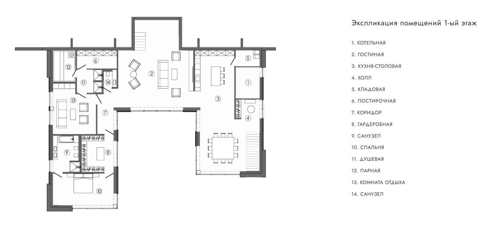
Двухэтажный жилой дом, расположенный в живописных горах — идеальное место для жизни. На первом этаже находится уютная гостиная, кухня-столовая, комната отдыха с парной — прекрасное место для отдыха или приема друзей. Мастер блок включающий ванную комнату и гардеробную.
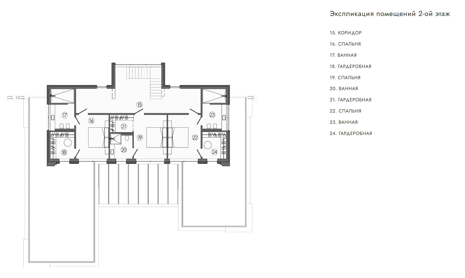
На втором этаже находятся 3 спальни, все они оборудованы ванными комнатами, гардеробными и имеют достаточно места для комфортного проживания.
Общая площадь: 500 м²
Фотограф: Владислав Феоктистов



Добавить комментарий