SPA-комплекс Palmira Art Hotel в Москве

Palmira Art Hotel в Москве – место, где красота и функциональность становятся единой формой искусства. Дизайнерская среда, продуманные маршруты и атмосфера вдохновения превращают пребывание в отеле в чувственный и неповторимый опыт.
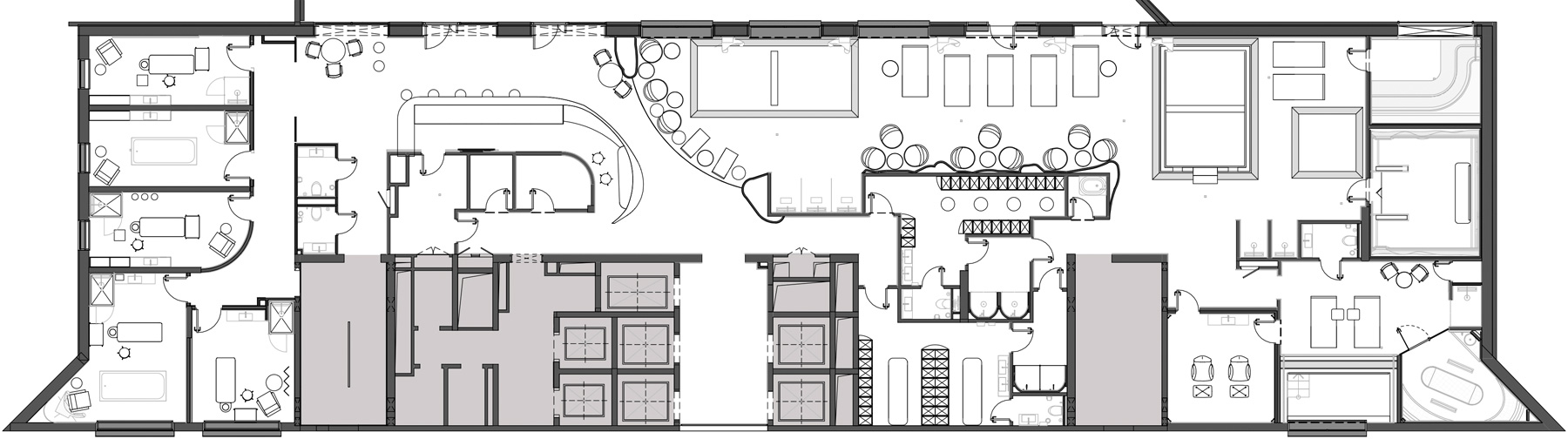
SPA & Wellness Palmira Art задумывалось как смысловое ядро отеля – место, которое задаёт тон впечатлениям и наполняет гостя особым состоянием. Перед архитекторами MAD Architects стояла задача создать не просто функциональный СПА-комплекс, а место притяжения, где эстетика, сервис и атмосфера соединяются в единую художественную среду. Это должен быть не «дополнительный сервис», а точка фокуса, медленное пространство отдыха, восстановления и созерцания. Техническое задание предусматривало размещение на площади 560 м² акватермального комплекса европейского уровня. В состав функциональной программы вошли: несколько бассейнов, включая аэро-гидромассажный и соляной флоатинг-бассейн; контрастная купель; римская баня; панорамная финская сауна с видом на город; зона отдыха с шезлонгами; а также тропические души с хромотерапией.
Дизайн-концепция SPA-комплекса Palmira Art Hotel строилась не на буквальном повторении эстетики отеля, а на её аккуратном продолжении, будто вы переходите из галереи в живую, чувственную инсталляцию. Основной задачей было подчеркнуть творческий характер арт-отеля, сохранив его лаконичность и внимание к деталям, но переведя их в язык телесного и тактильного опыта.
Здесь каждый зал, каждая комната как отдельное художественное произведение, созданное в своём стиле и собственной эмоции. Но все они соединены общей линией – ясностью форм, чистотой композиции и мягкой сдержанной роскошью. Цвет, свет и текстуры работают как единая партитура: тёплый камень, приглушенные оттенки, естественные материалы и плавные линии создают состояние замедления и тишины.
Яркие дизайнерские акценты: скульптурные детали, выразительные световые сценарии, контрасты фактур – держат внимание также, как картина в музейном зале, но никогда не перетягивают его на себя: они встроены в логику среды и подчинены телесному комфорту гостя.
Функция и эстетика здесь не спорят, а усиливают друг друга. Пространство СПА спроектировано так, чтобы движение по нему было естественным и свободным: акватермальная зона будто течет волной, массажные кабинеты напоминают коконы, а зоны отдыха камерны, словно мизансцены для тишины.
В результате дизайн комплекса не просто продолжает идею арт-отеля, он раскрывает её глубже: позволяет человеку стать частью архитектурной партитуры – здесь тело, взгляд и дыхание звучат в унисон с пространством.
Архитектура как язык идентичности
Планировочная структура подчинена бизнес-процессам СПА: приём гостей и распределение потоков, водно-термальный цикл, процедуры и релакс, а также скрытая логистика персонала. Рецепция работает как распределительный узел: отсюда гость попадает в «мокрую» общественную зону и в «сухой» тихий блок процедур.
Центральный зал с бассейном – ядро пользовательского сценария. По его периметру сгруппированы термальные модули (сауны разных температур, паровая, хаммам, контрастные купели, охлаждающие души). Такая конфигурация обеспечивает визуальную связность и обзорность: лежа у воды, пользователь считывает заполненность парных и свободно чередует горячие и холодные фазы без блужданий по «слепым» коридорам. Это повышает оборачиваемость и качество опыта одновременно.
Тихая зона массажных кабинетов вынесена «вглубь» за акустический тамбур и буферные подсобные ядра – сюда не проникают плеск и разговоры из бассейна. Внутри – контролируемая освещённость, мягкие маршруты, повышенная приватность. Разделение «чистых/грязных» и «гостевых/служебных» потоков решено на уровне планировки: технологические ниши для белья, скрытые посты уборки и короткие пути для персонала минимизируют пересечения и простои.
Каждая зона имеет собственную пластическую и эмоциональную интонацию, но объединена общей дизайнерской логикой: чистая архитектурная форма, выверенные пропорции и акцент на тактильность материалов. Художественные приёмы – скульптурные объемы, локальные цветовые акценты, арт-объекты – не выступают декором, а формируют идентичность пространства, подчеркивая связь с творческой атмосферой отеля.
Разнообразие стилевых решений между помещениями – осознанное. Оно отражает идею персонализированного опыта: каждый гость выбирает «своё» настроение и тип отдыха. При этом единая композиционная ось, согласованная палитра натуральных оттенков и системное освещение объединяют залы в цельный визуальный и смысловой нарратив.
Материалы и инженерия поддерживают концепцию: противоскользящие покрытия и керамогранит в мокрых зонах, звукопоглощающие поверхности в тихих, раздельные контуры вентиляции с осушением у воды и повышенным воздухообменом в парных. Сценарное освещение (ориентирующее в общественной зоне и приглушенное в кабинете) и понятная навигация дополняют пользовательский опыт. Доступность для МГН и безопасные радиусы/проходы заложены изначально.
Так архитектура становится инструментом бренда: она не только визуализирует ДНК отеля, но и поддерживает эмоциональную атмосферу уединенного и интеллектуального отдыха.
Зонирование обслуживает одновременно десятки гостей, сокращает лишние перемещения, даёт контроль над собственным ритмом и обеспечивает тишину там, где она критична. Это и есть забота о клиенте, встроенная в планировку.
Тихая инженерия эстетики
Особое внимание уделялось архитекторами качеству среды – свету, акустике и тактильности. Световой сценарий выстроен на сочетании естественного и управляемого искусственного света: мягкие отраженные потоки формируют ощущение покоя, а акцентная подсветка выделяет текстуры камня и воды. Акустика тщательно проработана – инженерные шумы сведены к минимуму, а отделочные материалы подобраны с учетом звукопоглощения и комфорта восприятия.
Технологическая часть полностью интегрирована в архитектуру и остается «невидимой»: системы микроклимата деликатно регулируют температуру и влажность по зонам, подогреваемые поверхности повышают комфорт, а интеллектуальное управление освещением и вентиляцией адаптируется к сценарию использования.
Детали – мебель, живые растения, арт-объекты – работают как элементы идентичности бренда. Они формируют не просто интерьер, а безопасный мир, где процесс сочетается с наслаждением, а каждая деталь подчеркивает статус и особенность арт-отеля.
Palmira Art Hotel (СПА-зона)
Площадь проекта: 636 м²
Сроки проектирования: 2021-2024
Сроки реализации: 2023-2024
Адрес: г. Москва, улица Магистральная, строение 11, вл. 4/1
MAD Architects:
CEO: Мария Николаева
Руководитель архитектурного отдела: Александр Морозов
ГАП: Юлия Катаева
Архитекторы: Полина Москвина, Наталья Казакова, Алексей Зеленцов, Карина Кириллова, Любовь Солодовникова РП: Анастасия Пинигина
Визуализатор: Мария Ордян
Фотограф: Даниил Анненков Заказчик: Palmira Group
Строительная компания: ООО «Комета»
Мебель – бренды и поставщики: Smoov, Berkano Освещение - бренды и поставщики: Artlight, Maytoni Перегородки: Knauf
Напольные покрытия: Archskin, Atlas Concorde, Италон, Mutina, Cedit, Equipe, Florim
Потолочные системы: Fandermax, Cladding Solutions, Hogger, Knauf
Изделия на заказ: ColombiniMSK, студия «Аромат цвета» (декор стен имитация скалы)
Palmira Group – российская компания, специализирующаяся на управлении отелями и объектами культурного наследия. В портфеле – разнообразные проекты индустрии гостеприимства: от семейных курортов у моря до городских арт-отелей и загородных пространств для полной перезагрузки.



Добавить комментарий