Школа на 825 мест в Гатчине: «Y-школа» | БалтИнвест-Проект

С самого начала этот проект позиционировался застройщиком не как обычная школа, а как современное образовательное пространство. В связи с отсутствием собственных разработанных аналогов, нам было необходимо с нуля учесть все нюансы.
Поэтому, уже на стадии концепции, мы провели в бюро внутренний конкурс, с целью не только определить лучшую концепцию, но и выявить набор решений, соответствующих такому типу здания. Знакомство с новыми идеями, анализ референсов и подбор наиболее удачных проектных решений помогли в итоге получить целостный и гармоничный проект.
Планировочная концепция:
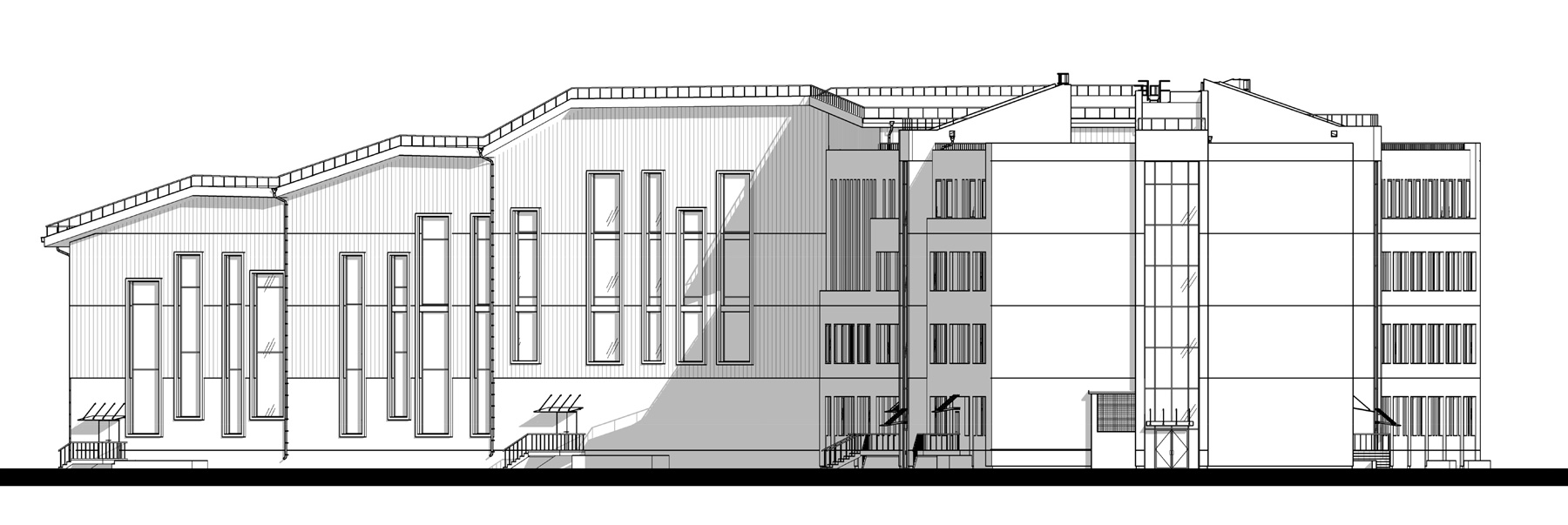
Композиционным ядром здания является планировочная схема, основанная на лучевом принципе: два четырёхэтажных блока учебных помещений и объём спортивного зала, расходятся от центрального атриума. Данная конфигурация позволила оптимизировать функциональное зонирование и обеспечить высокий уровень естественного освещения внутренних пространств. Благодаря характерной форме, проект получил неофициальное название «Y-школа».
Формообразование и фасадные решения:
В целях достижения выразительности архитектурного облика, была разработана многослойная фасадная система, сочетающая оштукатуренные поверхности и навесные элементы. Акцентирование вертикальных объемов лестничных клеток достигнуто посредством применения фасадных кассет насыщенного жёлтого цвета, в то время как темно-серые вставки формируют визуальный ритм оконных проёмов. Доминантой входной группы служит вертикальный акцент в виде красной полосы, визуально объединяющей три этажа. Объём спортивного зала, противопоставленный строгой геометрии основного здания, выделен посредством облицовки фасадными кассетами с текстурой дерева и витражным остеклением, дополненным жёлтыми декоративными элементами. Динамичный силуэт кровли спортивного зала, сформированный ступенчатой структурой, привносит дополнительную пластику в архитектурный образ.
ТЭП:
Здание – 4-х этажное, имеет следующие параметры:
- общая площадь здания – 16 690 м²;
- строительный объем здания – 76246 м³;
- высота здания – 21,035 м;
- высота этажа – 3,57 м;
- площадь застройки − 4 587 м².
Авторский коллектив ООО «БалтИнвест-Проект»:
Руководитель: Едемский И.В.
ГАП: Павлова Н.В.
Архитектор: Мусиенко Е.В., Бежков М.И.
Ландшафтный архитектор: Алимусаева Р.М.



Добавить комментарий